《十二大必買價值》【享受千億醇熟配套,成中央核心居住區】項目地處前海核心區域,位于城市發展動力最強勁的前海核心軸上。新安與寶中已經
房屋戶型:1室 、2室 、3室 、
住宅類型:
區域:深圳市寶安區新安街道新安四路與建安一路交匯處以東
最新開盤:暫無
立即咨詢
24小時咨詢熱線:13267179661
《十二大必買價值》
【享受千億醇熟配套,成中央核心居住區】
項目地處前海核心區域,位于城市發展動力最強勁的前海核心軸上。新安與寶中已經正式一體化,近享大灣區時代前海的超級發展紅利。目前,新安片區,尤其是在沿前進路正在進行著大規模的城市更新,分布著眾多城市更新項目,超千萬的更新體量,其中超過400萬平米的城市綜合體,擁有逾100萬平米的商業,周邊價值騰飛在即。
【全維路網鏈動世界,半小時通達全城】
項目周邊目前已開通的地鐵5號線,同時享受在建12、15號線(規劃中)共三地鐵線環繞,自駕由廣深公路行、寶安大道,30分鐘可達福田、南山、寶安中心區。
【出入公園環繞,優享豐富自然生態資源】
項目周邊配備13大公園:流塘公園、寶安公園、碧海灣公園、西鄉公園、靈芝公園、新安公園、濱海文化公園等,項目距離寶安公園直線距離僅1.5公里,距離流塘公園直線距離僅607米,出入公園環繞,宜居屬性高。
【全成長生活場,優質教育舉步即達】
項目2公里范圍內擁有9所中小學,是寶安區內的高密度教育資源片區、其中有兩所廣東省一級學校:弘雅小學、文匯學校(初中部),文匯學校作為新安片區的黑馬學校,一躍成為寶安區第二。項目目周邊還擁有大量優質的少兒培訓機構,滿足孩子成長教育的多樣化需求。
【萬千精彩聚場,享步行可達的奢侈】
項目1公里范圍內有天虹商場,萬達廣場、沃爾瑪等商業配套。2公里內有中洲πMALL、海雅繽紛城、壹方城等超百萬平方米醇熟都會商圈配套,滿足日常購物逛街需求,坐擁西部商圈核心。
【超千萬舊改,煥新片區人居生活】
新安片區,尤其是在沿前進路正在進行著大規模的城市更新,分布著共20個舊改項目,超千萬的舊改體量,相當于新安整個片區重建。僅我們項目2公里范圍內就匯聚了8個舊改項目,分別是沃爾瑪購物廣場片區舊改、安華工業東區舊改,卓越翻身舊改、寶城碧海花園舊改、公路局西側舊改、甲岸村舊改、宏發新領域、中洲中央公園二期。
【全球頂尖景觀設計AECOM,營建穿越花園的旅行】
聘請設計“深圳灣一號”、“深圳華潤悅府”的全球頂尖景觀設計AECOM團隊,對標城市一線豪宅,斥巨資打造項目空中花園,充分運用入戶景觀、中央水院、迎賓廣場、噴泉水景等景觀營造手法,呈現完美的視覺體驗和移步換景之美,讓業主的每次歸家,一步一景之間,都是一場穿越花園的旅行。
【新銳設計團隊“詩意空間”精心設計,品質見微知著】
對標深圳核心區域一線豪宅設計理念,由設計過深圳華潤悅府、深圳華潤潤府、深圳萬科臻系高端項目的“詩意空間”設計團隊擔綱本項目的公共空間設計,在用材用料、審美藝術等方面,參照南山、前海的一線豪宅;入戶大堂均設置會客區,滿足社區入戶的自然社交功能,空間布局充分考慮社交功能與迎接賓客的用戶需求,在保留闊綽的大堂空間的基礎之上滿足客戶大堂會客的第一重禮儀;打造輕奢電梯廳作為入戶前的一道風景,給予業主全方位的榮耀體驗,呈現非凡禮儀序列感,造就無與倫比的居住體驗,鼎成生活至高禮遇。
【“熙管家”全方位服務,護航品質生活】
本項目由深圳市中熙物業管理有限公司進行物業服務,所服務的項目曾獲深圳市住宅示范小區、南山區住宅示范小區等榮譽,同時在管項目達十幾個,均在深圳、東莞兩地,深諳本土客戶的需求,設立“棟管家”一站式服務機制,經過十幾年的運營,培養了一批具有豐富管理經驗的“熙管家”,為業主提供全方位貼心服務。
【整體圍合式布局,外立面打造現代化品質美學】
采用圍合式布局,接續中國傳統建筑布局精髓,強調建筑圍繞中心環境而設計,從而讓景觀共享最大化,實現戶戶有景的均好布局,不僅通風、采光效果好之外,樓間距也得以拉大,私密性也得到了更好的保護;更重要的是,圍合出的園林,將可打造更多樣的立體景觀空間。
【均好性強且奢適實用,打造雅而奢的生活】
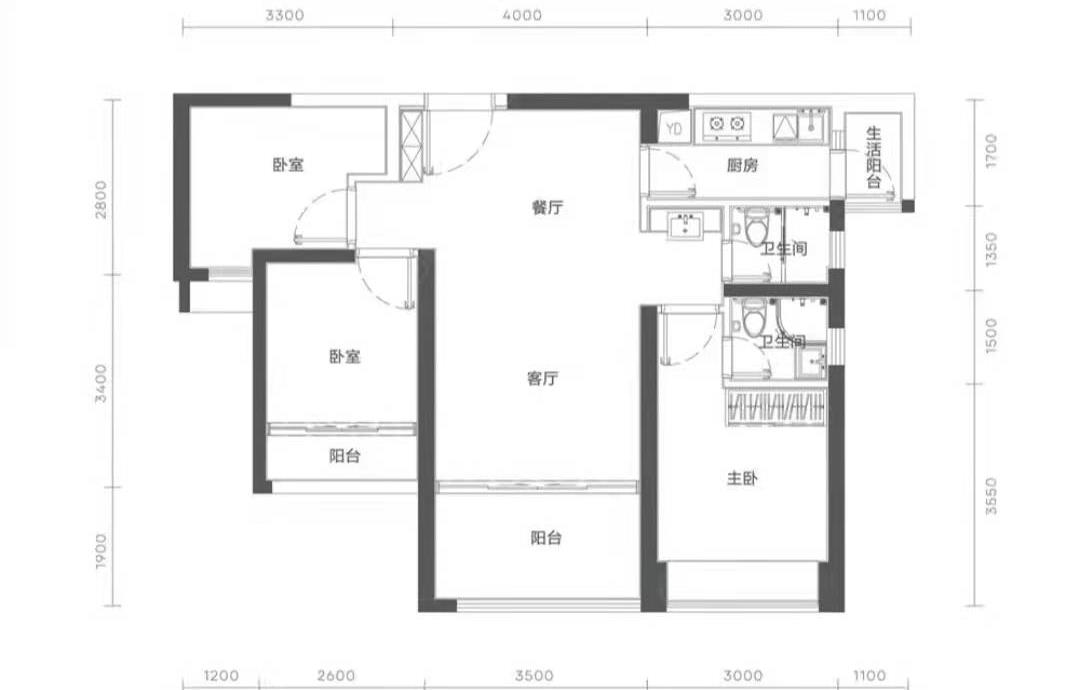
玖玖頌閣復興生活之雅,踐行“奢適實用”的生活方式,打造約83-133㎡雅奢空間,全動靜分區,設計更人性化,精心設計多種實用功能,打造舒適生活空間,全南向通透戶型打造全采光戶型。83-90平米戶型均為3房2廳2衛,主臥都搭配了套間,128-133平米4房戶型以陪伴為主設計概念,打造實用家庭廳,空間尺度合理。
【深耕莞深20多年,所到之處皆繁華】
中熙集團先后開發了香緹灣、香繽山、君南山、君墅灣、玖頌江灣、香緹公館、瓏灣等品質用心之作,以戶型創新實用得到業界好評,有較好的市場影響力及業主口碑。深莞開發項目十幾個,皆占踞城市中心絕佳位置,坐擁醇熟完善配套,推動一方繁華發展。






















寶安區沙井街道南環路玉西環路交匯處
服務熱線:何永斌 聯系方式:13267179661
深圳市寶安區新安街道新安四路與建安一路交匯處以東
《十二大必買價值》【享受千億醇熟配套,成中央核心居住區】項目地處前海核心區域,位于城市發展動力最強勁的前海核心軸上。新安與寶中已經
樓盤:中熙瓏灣物業類型:普通住宅、公寓戶型:1室、2室、3室、4室面積:約43-131平米總價:約420-621萬聯系人:何詠斌聯系電話:13267179661
深圳市寶安區新安街道新安四路與建安一路交匯處以東
《十二大必買價值》【享受千億醇熟配套,成中央核心居住區】項目地處前海核心區域,位于城市發展動力最強勁的前海核心軸上。新安與寶中已經