地處于松山湖北CBD,離華為總部基地200米的距離,位于項目對面,松山湖產業園將引入40萬就業人才,租賃無憂。
房屋戶型:1室 、2室 、3室 、4室 、
住宅類型:大紅本房
區域:東莞松山湖
最新開盤:2020.4.4
立即咨詢
24小時咨詢熱線:13267179661
松山湖華為總部基地旁
項目名稱:華為一號
項目概況;
占地約9.5萬,建筑約21萬,容積率1.8
分三期開發,一期商業:胡桃李,莫奈咖啡等知名商家已入駐營業,二期高層:現推產品39-188㎡,三期獨棟與高層
主推產品:
39-57-91㎡,有平層均價12000/㎡
平層帶精裝修,戶型靈活多變,可組合
50-56-103㎡,有復式均價16000/㎡
復層帶精裝修,高達70%的贈送面積
付款方式:首付5成,分期3-8年,利息3-4厘
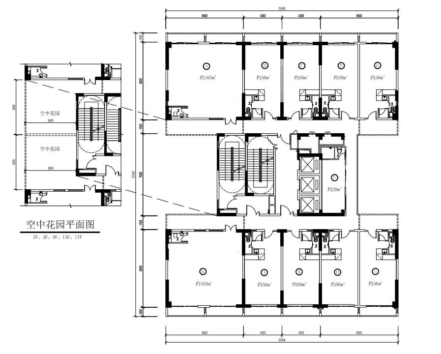
【主推產品】
平層:約39-95㎡精裝SOHO
約39-49㎡一室(南北通透)
約53-57㎡兩室(南向湖景)
約91-95㎡三室(帶陽臺)
約148-188㎡四室(合拼戶型,南北通透)
復式:約49-103㎡百變LOFT,4.5米層高
約50-56㎡兩室(戶戶帶外陽臺)
約103㎡三室(戶戶帶外陽臺,南北通透)
【項目基礎信息 】
投資商:長和投資旗下
總占地面積:約10萬㎡
總建筑面積:約21萬㎡
容積率:1.8
總棟數:一期:37棟48戶獨立單元;二期:2棟4個單元高層
梯戶比:集美軒(復式)3梯11間,集思軒(平層)2梯7間
物業管理費:3.5元/㎡
交付標準:精裝交付
項目6大賣點
1:地處于松山湖北CBD,離華為總部基地200米的距離,位于項目對面,松山湖產業園將引入40萬就業人才,租賃無憂。
2:自身配套成熟,胡桃李等商家已入駐。與萬科生活廣場僅2公里,與華潤萬象匯1.5公里
3:地鐵口:松山湖北站1.2公里,離高速出入口石大路1.5公里,片區交通便利
4:旁邊為黎貝拆遷區,占地約18公項,將打造為商住區,配建一所48班小學,預計將3000-4000教職工及學生。
5:李嘉城旗下“長和投資”集團,由長江與和記黃埔成立的戰略投資機構
6:可坐擁國家級高新區+4A級風景區:松山湖103平方公里,8萬平方公里淡水湖,14平方公里生態綠地,六大主題公園:松湖煙雨、中心公園、松湖花海、濕地公園以及金多港高爾夫等,將成為新的可宜居的富人區
感謝您的瀏覽;
本站在售樓盤房源均為開發商售樓處直售
不收取任何中介費、喝茶費,請放心預約!
為了不耽誤到您寶貴的時間,能給到您一個更好的看房體驗,請提前一小時電話或微信預約看房
看房預約;132-6717-9661 (微信同號)












